Cécile Gaudard

The caretakers

Cécile Gaudard

Motivation du jury

Récemment diplômée de l'ENSA Paris, le projet de Cécile Gaudard a été salué pour ses qualités esthétiques et narratives. Composé de 6 dessins en noir et blanc au feutre et à l’encre, et ancrée dans les montagnes foreziennes en France, Cécile Gaudard propose une réappropriation d’un paysage montagneux modifié par l’ère anthropocène, en transformant une station de ski en lieu de production de fromage. En s’intéressant aux effets néfastes de l’industrie forestière sur les paysages, le dossier pose la question d’un équilibre entre la préservation de l’environnement, et la poursuite des économies et des modes de vies actuels.

Le projet

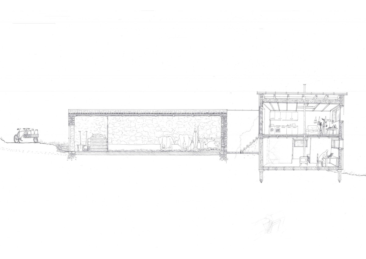
The caretakers – an exploration on a traumatized landscape

Dans le paysage rural des monts du Forez, en France, où la densité de population est de 8,5 habitants au kilomètre carré, se trouve le cours d'eau du Lignon. Ce cours d'eau serpente à travers la région et finit par se fondre dans la Loire. Dans ce cadre pittoresque, plusieurs éléments distinctifs façonnent le paysage : une carrière de granit en activité, qui a récemment obtenu une prolongation de 30 ans ; une station de ski confrontée à un enneigement hivernal insuffisant, qui envisage de se transformer en une destination permanente grâce à des infrastructures améliorées ; la présence de 66 perches de télésiège installées en montagne ; un réservoir d'eau récemment construit, d'une capacité de 45 000 m3, dédié à la production de neige artificielle ; l'existence de quatre barrages et de cinq scieries ; la traversée de lignes électriques à haute tension et d'une station hertzienne ; sept fermes laitières et trois autres établissements agricoles. L'ensemble de ces activités et aménagements constitue une menace pour le cours d'eau du Lignon et son écosystème.*

Le principal défi auquel nous sommes confrontés aujourd'hui est de savoir comment habiter et coexister sur un territoire qui a subi d'importants traumatismes. En particulier, notre région a été affectée par les conséquences d'une pratique excessive des sports d'hiver, entraînant un manque de
neige qui ralentit aujourd'hui ces activités. La question sous-jacente est de savoir comment mener une approche qui ne préconise pas l'arrêt complet de toutes les activités dans la région mais d'avoir une approche alternative pour habiter harmonieusement la région et réévaluer la situation.

*Pour entamer cette exploration par le biais d'une fiction, nous racontons une histoire menée par ceux qui ont joué un rôle dans le façonnement du paysage actuel et comment ils vont maintenant en devenir les gardiens. Par exemple, les bergers guideront leurs troupeaux vers les pâturages d'été et les pêcheurs s'occuperont des cours d'eau. Notre histoire s'articule autour du cours d'eau principal, qui utilise périodiquement sa force pour produire de l'énergie. Ce processus permet de réintroduire des modes de vie et des pratiques économiques durables à plus grande échelle sur le territoire. En substance, nous visons à créer une relation harmonieuse et mutuellement bénéfique entre l'homme et l'environnement, permettant une nouvelle ère de coexistence et de prospérité.